Atendimento Whatsapp WEB
 
R$ 2.755.000,00
  • Vaga(s): 2
  • Área Total Privativa:140,01 m²
  • Mobília: Sim

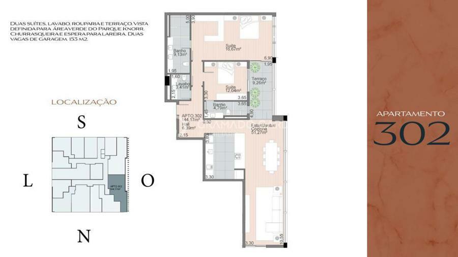
Imobiliária Gramado Garden vende!Apartamento de alto padrão em Gramado. Duas suítes, lavabo. Uma vaga de garagem. 150,61m2 privativos. Apartamentos com Porcelanato- Churrasqueira- Esquadrias Sierra, padrão Europeu- Lareira e Móveis Sierra

Salão de festas com vista para o Vale do Quilombo- Fitness equipado- Espaço de coworking- Sala de Cinema- Lavanderia- Espaço Pet Care- Vagas internas para visitantes- Elevador Tyssen Krupp de última geração Jardim com:- Paisagismo- Playground- Pergolado- Espaço pet- Fitness outdoor. Contato com Flora (54) 996532224

Simulador de Financiamento

  LOCALIZAÇÃO - APARTAMENTO 2 SUÍTES

Ver Rua

IMÓVEIS SIMILARES

Usamos cookies para personalizar e melhorar a sua experiência. Ao navegar neste site, você concorda com a nossa Política de Privacidade.